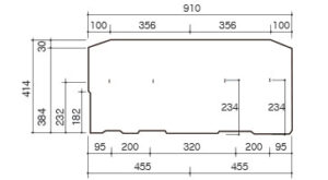
KMEW의 독자적인 3중 구조 무기계 도막 ‘GLASSA 코트’로 자외선에 강하고 아름다움이 오래 지속됩니다.기재의 고밀도와 균일한 구조에 의해 뛰어난 내구성을 발휘하는 우수한 지붕재 입니다. CERAMIC ROOF 세라믹 기와 세라믹기와는 케뮤 지붕재의 세라믹 코팅으로 두 개의 서로 다른 무기층을 이루고 있어 자외선으로부터 기존의 색상과 광택을 보호합니다.또한, 한 장 한 장 고정 못 4개로 단단히 고정되어 있어 강풍에 의해 날아가는 것을 방지할 수 있습니다. 세라믹코팅내풍성능뛰어난 내구성 제품 색상 네오블랙 CC262코코넛브라운 CC221(주문색상)월넛브라운 CC241(주문색상)실버화이트 CC225(주문색상)아이스실버 CC235(주문색상)펄그레이 CC275(주문색상)아이리스 그린 CC247(주문색상)제이드 그린 CC277(주문색상) 제품 규격 품명세라믹기와 규격(mm)5.2 x 414 x 910 포장단위(단)8장/단 3.4kg/장 시공면적0.1656㎡/장 (20장/평) 지붕재 원장 스타터 시공사례 네오블랙 CC262네오블랙 CC262