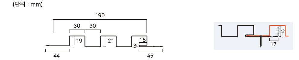
루버사이딩 돌출이음 평이음 각재이음 인터락킹 K-ZINC 징크시스템 21세기 건축의 트렌드인 미니멀리즘과 모던함을 가장 잘 표현할 수 있는 징크는,오랜기간 새 것처럼 이용할 수 있는 자재로 현대 건축이 바라는 가장 멋진 외관을 가지고 있어이제 소비자들의 가장 선호하는 제품이 되었습니다. K-ZINC 홈페이지 바로가기 K-ZINC 카달로그 다운로드 ZINC LOUVER SIDING 징크루버사이딩 징크루버사이딩 시스템은 동일한 간격으로 심플하면서도 입체적인 직선의 아름다움으로 건물의 외벽을 개성있는 모습으로 디자인 할 수 있는 시스템입니다. 노출폭 (가공후 폭) | LS 275 원자재 폭수노출폭제품높이두께 W500 ~ W518W275 (+3)H23 (±1)0.5~0.7T | LS 316 원자재 폭수W607 노출폭W316 제품높이H25 두께0.5~0.8T | LS 190 원자재 폭수W380 노출폭W190 제품높이H21 두께0.5~0.8T