아이디 8000

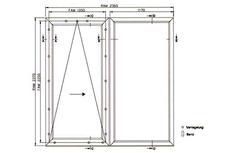
틸트 앤 슬라이딩

독일 시스템 창호 아틱 윈도우

독일 시스템 창호 알루 플라스트 제품으로 자체 시공 브랜드 ‘아틱’으로 차별화된 제품품질과
가격이 높은 만큼 품질 좋은 ROTO 하드웨어를 사용하며, AS에 남다른 대응체계를 갖추고 있습니다.
우수한 단열성과 안정성을 체험해 보세요.

TILT & SLIDE

틸트 앤 슬라이딩

창문의 일부가 10~ 15도 정도 내측으로 기울어지는 틸트(환기)기능과 슬라이딩(미서기)기능이 하나의 핸들 작동으로 가능한 유럽식 창호입니다.
다양한 래핑필름 및 불소도장 적용으로 조화로운 인테리어 효과 연출이 가능합니다.

  • 좁은 공간에서도 개폐가 용이함
  • 3중 가스켓
  • 고기능 유압 Handle 적용

제품 규격

프레임85 mm
유리26 ~ 52 mm